Architect Barbara Peckstadt
Menu
Spring naar inhoud
Home
Diensten
Verbouwing – wat te verwachten
Nieuwbouw – wat te verwachten
Nieuwbouw
Nieuwbouw K&B Gavere
Nieuwbouw N Gavere
Nieuwbouw P&K Melsen
Nieuwbouw P&K Melsen (2)
Nieuwbouw B Wevelgem
Nieuwbouw A&G Oosterzele
Nieuwbouw A&G Oosterzele (2)
Nieuwbouw T Eke-Nazareth
Nieuwbouw DNS Baaigem
Nieuwbouw T Destelbergen
Nieuwbouw T Destelbergen (2)
Renovatie
M&K Merelbeke
L&L Gavere
D&M Asper
S Dikkelvenne
Q&J Lievegem
M&M Merelbeke
L&J Aalter
T&J Merelbeke
L Asper
M Laarne
S&E Melsen
M&D Ursel
K&K Destelbergen
A Deinze
L Kruisem
B&G Merelbeke-Melle
Interieur
Kantoor Onderstraat Gavere
K&S Bottelare
P&A Gent
E&H Gavere
Projectupdates
About us
Contact
Zoeken
Zoek naar:
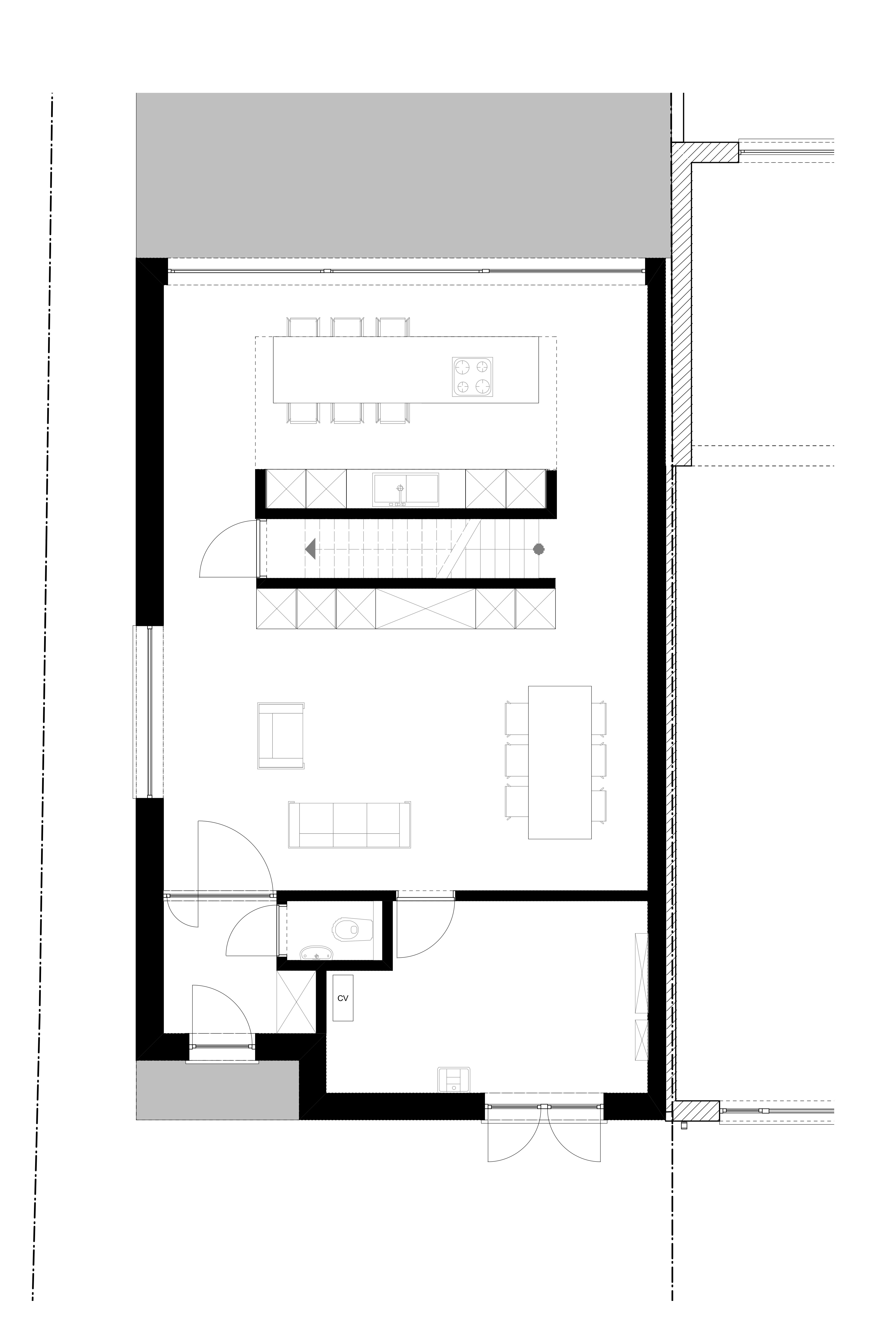
plan 0
16/04/2019
/
bparchitect
Berichtnavigatie
←
BEN woning
Plaats een reactie
Reactie annuleren
Δ
Reactie
Abonneren
Geabonneerd
Architect Barbara Peckstadt
Meld mij aan
Heb je al een WordPress.com-account?
Nu inloggen.
Architect Barbara Peckstadt
Abonneren
Geabonneerd
Aanmelden
Inloggen
Korte link kopiëren
Deze inhoud rapporteren
Bekijk bericht in Reader
Beheer abonnementen
Deze balk inklappen